Feuerwehrpläne
für bauliche Anlagen nach DIN 14095
Feuerwehrpläne ermöglichen den Einsatzkräften die schnelle Orientierung in Gebäuden. Sie geben Aufschluss über Angriffswege, Löscheinrichtungen und Gefahrenschwerpunkte sowie Ansammlungen von brennbaren Materialien. Für die Feuerwehr sind sie ein wichtiges Werkzeug, um Menschenleben retten und Schäden von Gebäuden abwenden zu können.
SafetyConsult richtet sich bei der Erstellung von Feuerwehrplänen nach der DIN 14095 und berücksichtigt die Vorgaben der örtlichen Feuerwehr bzw. der Brandschutzdienststelle. Wir stellen sicher, dass bauliche und objektspezifische Besonderheiten in Absprache mit der zuständigen Brandschutzdienststelle dargestellt werden.
SafetyConsult – Professionelle Erstellung von Feuerwehrplänen
Auf Basis der Grundrisspläne führen unsere Spezialisten eine Ist-Aufnahme der relevanten Einrichtungen und ggf. einen Abgleich der Grundrisspläne durch. Anschließend erstellen wir aus diesen Unterlagen aussagekräftige Feuerwehrpläne. Durch den Einsatz modernster Farblaserdrucker und hochwertiger Weiterverarbeitung, ist eine gute Lesbarkeit für die Feuerwehr gewährleistet. Die Feuerwehr erhält einen schnellen Überblick über das gesamte Gelände, das Gebäude und alle relevanten Einrichtungen. Während der Bearbeitungsdauer stehen wir in engem Kontakt mit den Sachbearbeitern der Brandschutzdienstelle. Die Prüfung der Feuerwehrpläne auf Aktualität, ist laut DIN 14095 alle 2 Jahre erforderlich.
Struktur und Inhalt von Feuerwehrplänen


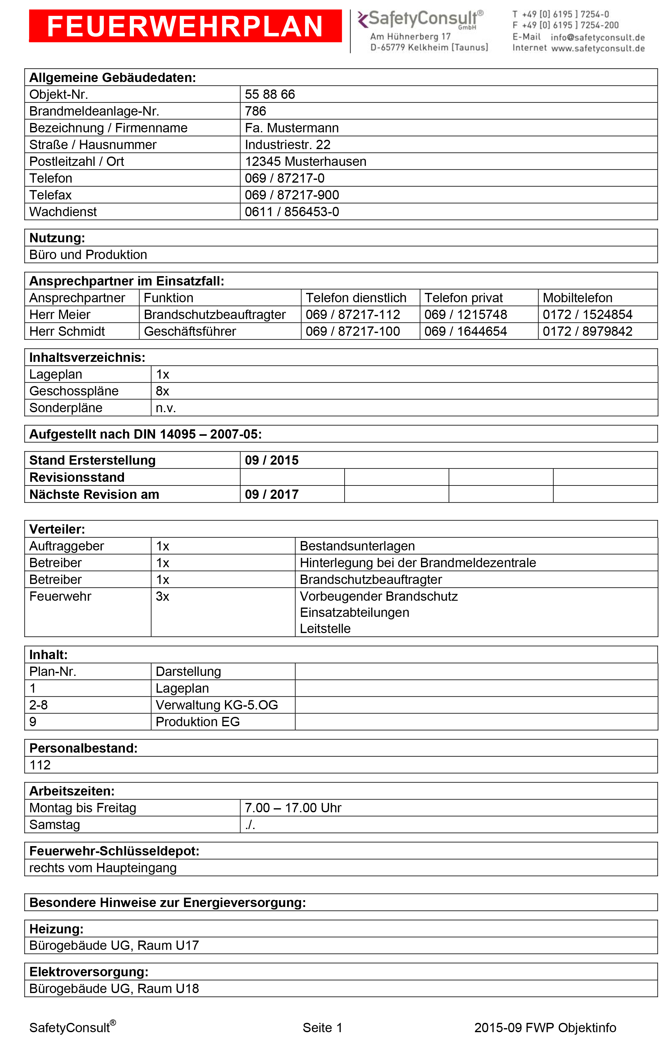
Objektinformationen
Sie beschreibt das Objekt mit Angabe wichtiger Telefonnummern, Kontaktpersonen etc.

Übersichtplan
Er zeigt das Gelände/Gebäude mit Außenanlagen und Umgebung.

Geschossplan
Er zeigt die einzelnen Geschosse in detaillierter Darstellung.

Sonderpläne
Dies sind z.B. Abwasser-, Umgebungs- oder Detailpläne. Diese können zusätzlich von der Brandschutzdienststelle angefordert werden.
Wandschränke von SafetyConsult für die sichere und dauerhafte Unterbringung Ihrer Feuerwehrpläne
Unsere Modelle sind für den Einsatz in Gebäuden oder im Freien geeignet. Die Wandschränke sind überwiegend mit einem Schwenkhebelgriff ausgestattet, der für die Aufnahme von Profilhalbzylindern, z.B. mit einer CL 1–Schließung, der Feuerwehrschließung oder einer Schließung aus Ihrer Schließanlage, ausgelegt ist. Weitere Angebote und Details zu den Wandschränken finden Sie in unserem Onlineshop: www.safetyshop24.de





